BILOCALE A REDDITO CON POSTO AUTO VIA DEI FAGGELLA.

In vendita
2 locali
Roma
229.000 €
Descrizione
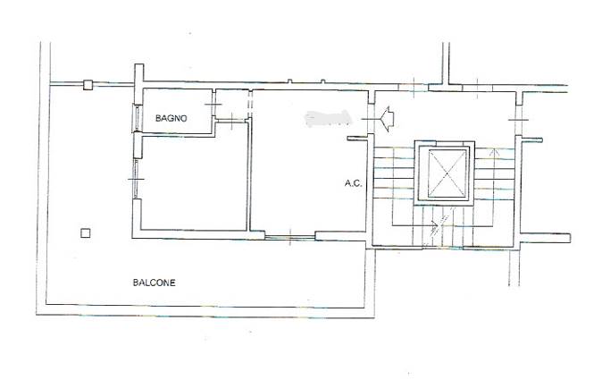
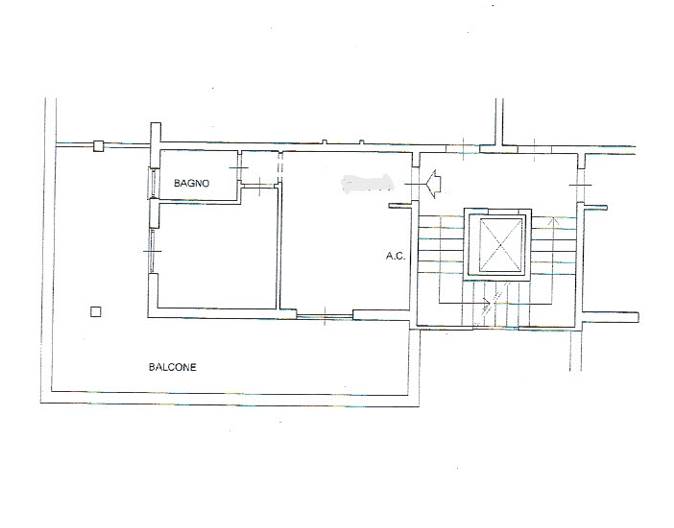
La Sinergie Immobiliari Agency propone in vendita un grazioso appartamento di 35 mq con un terrazzo panoramico di 40 mq situato al terzo piano con ascensore di uno stabile residenziale . L’appartamento è composto da soggiorno con angolo cottura, camera da letto, bagno e ampio terrazzo . A completare la proprietà un comodo posto auto scoperto e una cantina .L'appartamento è locato con un contratto a canone concordato con scadenza dei primi 5 anni il 31/10/2027, con un canone di locazione annuo di Euro 7.800,00. Ottimo investimento ! Per informazioni e per fissare un appuntamento potete contattare la Sinergie Immobiliari Agency al seguente numero telefonico 0666000700 o scrivere all’indirizzo mail. La Sinergie Immobiliari Agency S. r. l. nasce grazie a un team di professionisti con l’obiettivo di offrire soluzioni innovative per l’intermediazione, la gestione e gli investimenti immobiliari su tutto il territorio nazionale, avvalendosi delle migliori tecnologie per proporre servizi su misura per ciascuna tipologia di cliente. Se stai cercando la casa dei tuoi sogni, saremmo lieti di avere la possibilità di aiutarti. Non esitate a contattarci per qualsiasi domanda!
Caratteristiche principali
Codice:
FAGGELLA
Città:
Roma
Categoria:
2 locali
Locali:
2
Camere:
1
Bagni:
1
Mq:
40
Posti auto:
1
Terrazzi:
1
Classe energetica:
D
Cookie preference